Hausbeschreibung
August-Finke-Straße in Rietberg
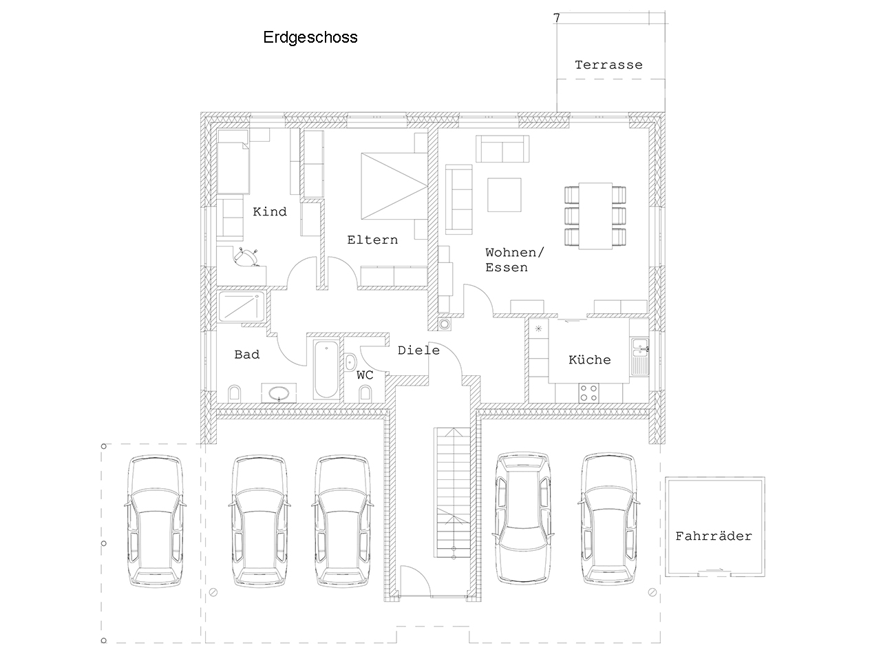
Bauobjekt: 5 Familienhaus
Bauleistung: Schlüsselfertig
Baubeginn: 7/2013
Fertigstellung: 1.06.2014
Energieeffizienzhaus 70
| Wohnung | Art | Lage | Fläche | |
|---|---|---|---|---|
| #1 | 3ZKB | Erdgeschoss | 107 m² | vermietet |
| #2 | 3ZKB | Obergeschoss | 81 m² | vermietet |
| #3 | 3ZKB | Obergeschoss | 81 m² | vermietet |
| #4 | 2ZKB | Dachgeschoss | 61 m² | vermietet |
| #5 | 2ZKB | Dachgeschoss | 61 m² | vermietet |











