Hausbeschreibung
Eigentumswohnungen der Extraklasse, Körnerstraße Gütersloh
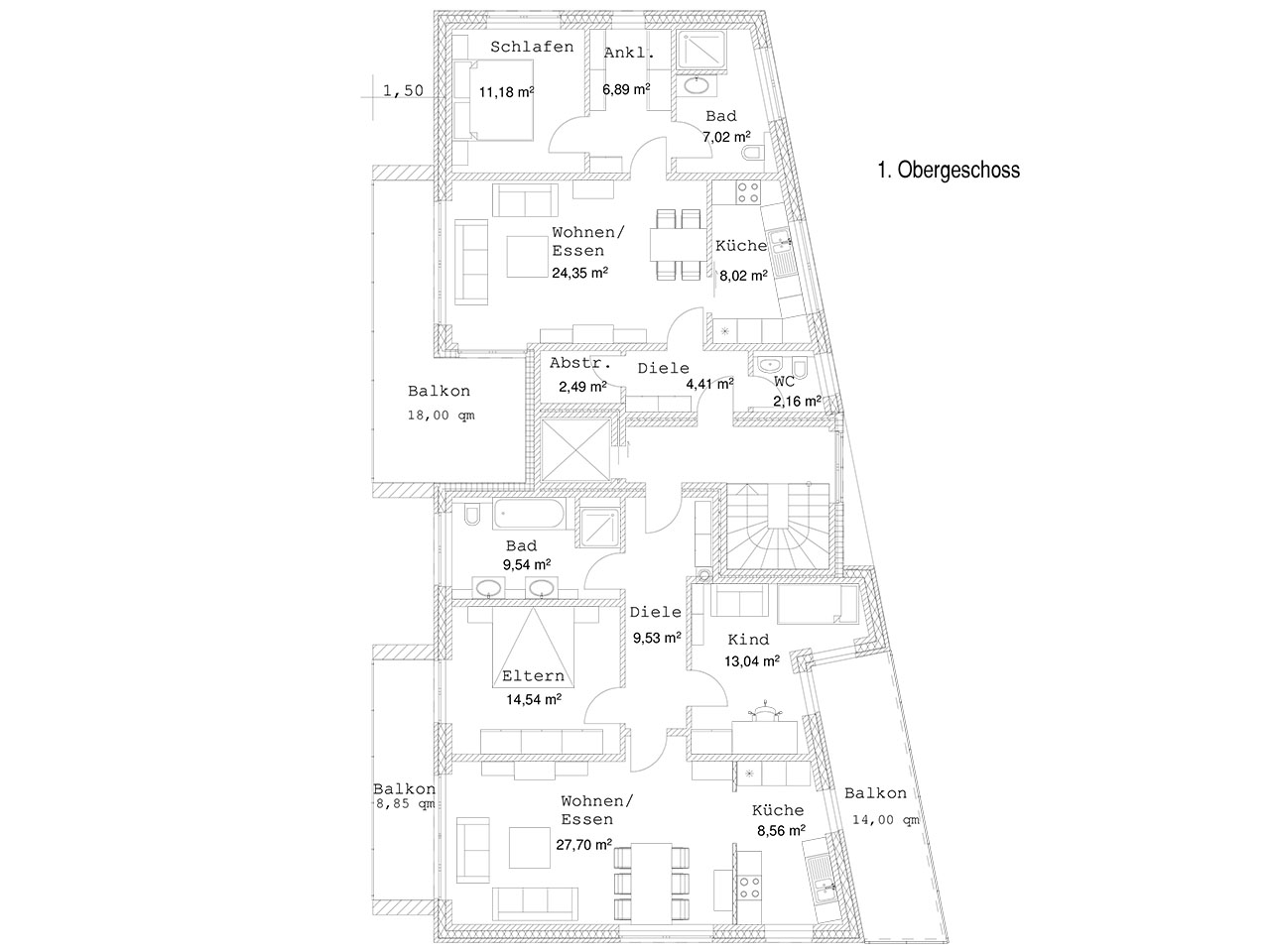
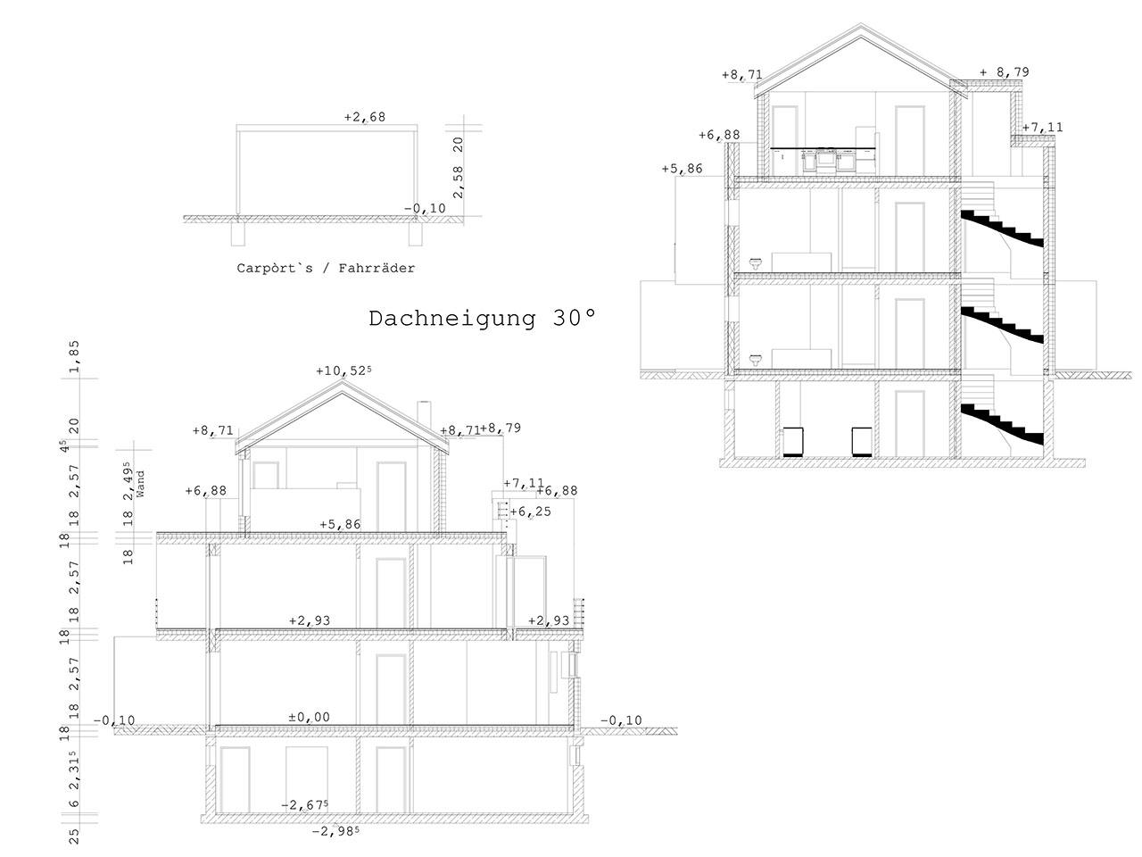
Bauobjekt: 4-Familienhaus mit Penthousewohnung
Bauleistung: Schlüsselfertig
Baubeginn: 9/2015
Fertigstellung: 7/2016
Energieeffizienzhaus 70
| Wohnung | Art | Lage | Fläche | |
|---|---|---|---|---|
| #1 | 2ZKB | Erdgeschoss | 77 m² | verkauft |
| #2 | 3ZKB | Erdgeschoss | 101 m² | verkauft |
| #3 | 2ZKB | Obergeschoss | 76 m² | verkauft |
| #4 | 3ZKB | Obergeschoss | 96 m² | verkauft |
| #5 | 3ZKB | Penthaus | 116 m² | verkauft |
















