Hausbeschreibung
Eigentumswohnungen der Extraklasse, Dasshorststraße 35, Rietberg
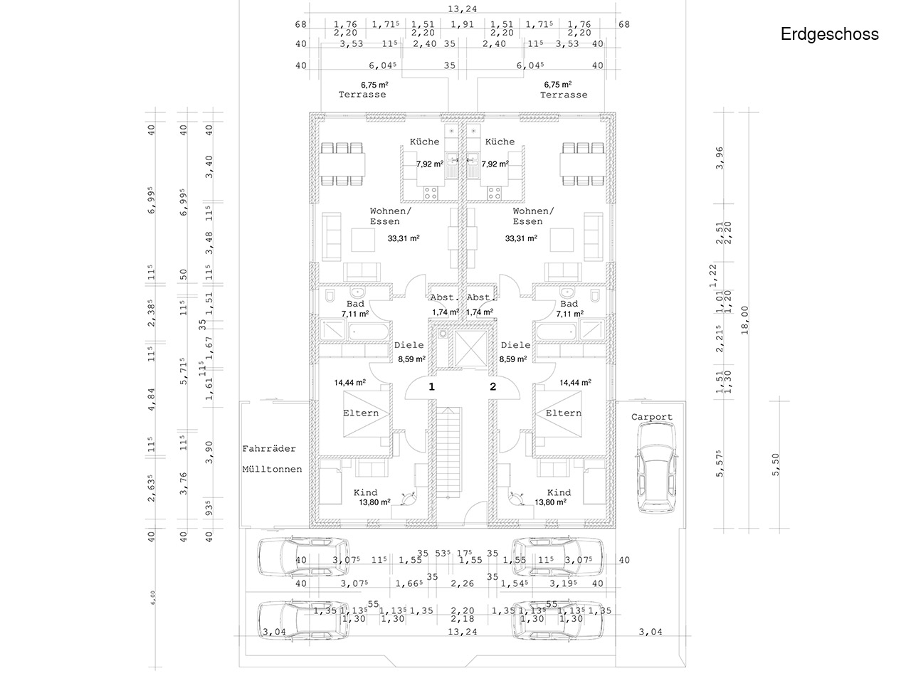
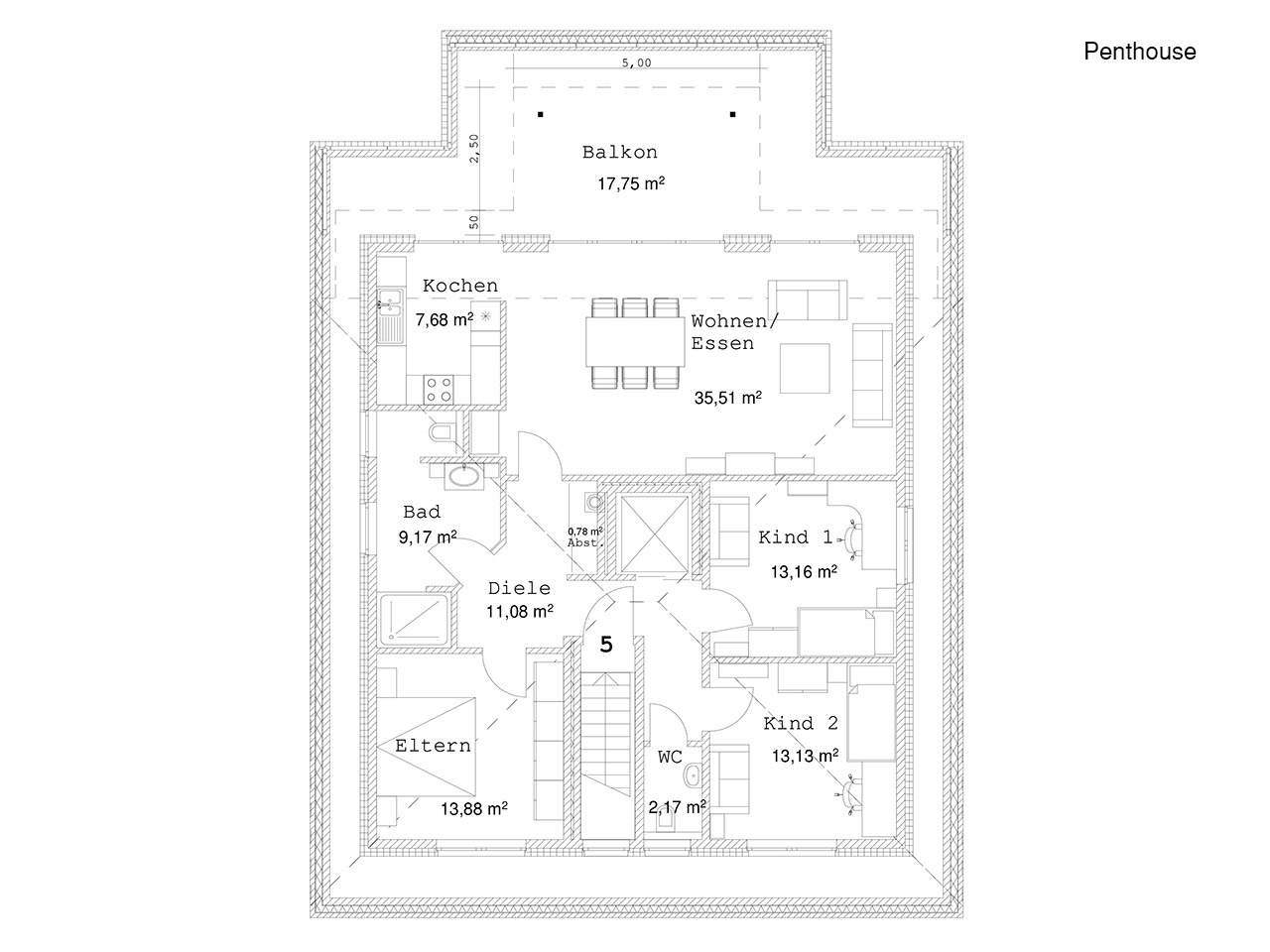
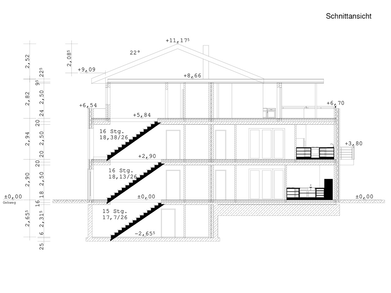
Bauobjekt: 5-Familienhaus
Bauleistung: Schlüsselfertig
Baubeginn: 07/08-2016
Fertigstellung: 06-2017
Energieeffizienzhaus 70
| Wohnung | Art | Lage | Fläche | Verkaufspreis |
|---|---|---|---|---|
| #1 | 3ZKB | Erdgeschoss | 94,5 m² | verkauft |
| #2 | 3ZKB | Erdgeschoss | 94,5 m² | verkauft |
| #3 | 3ZKB | Obergeschoss | 87 m² | verkauft |
| #4 | 3ZKB | Obergeschoss | 87 m² | verkauft |
| #5 | 4ZKB | Penthouse | 125 m² | verkauft |
Verkauf durch die Firma Sari Bau GmbH & Co. KG!












