Hausbeschreibung
Mietwohnungen der Extraklasse, Mastholterstraße 65, Rietberg
Bauobjekt: 3x 5-Familienhaus
Bauleistung: Schlüsselfertig
Baubeginn: 2017
Fertigstellung: 2018
Zu vermieten ab 2018
Energieeffizienz KfW55 2016
| Wohnung | Art | Lage | Fläche | Zur Miete |
|---|---|---|---|---|
| Haus 1 | ||||
| #1 | 3ZKB | Erdgeschoss | 93,3 m² | vermietet |
| #2 | 3ZKB | Erdgeschoss | 93,3 m² | vermietet |
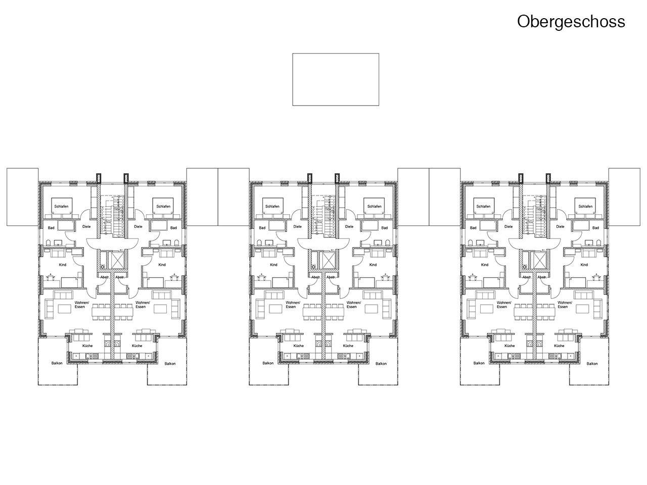
| #3 | 3ZKB | Obergeschoss | 93,3 m² | vermietet |
| #4 | 3ZKB | Obergeschoss | 93,3 m² | vermietet |
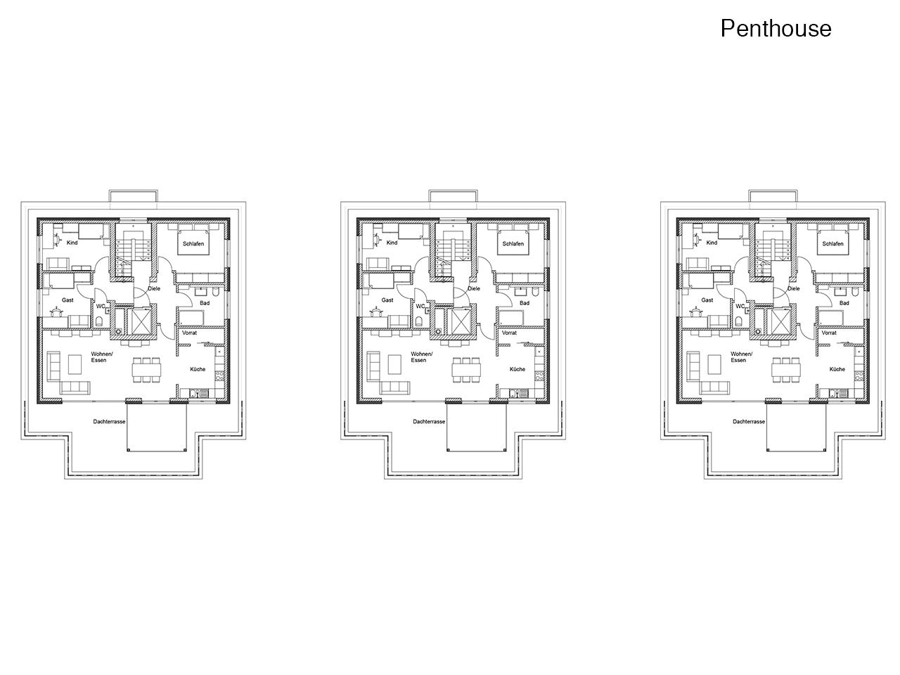
| #5 | 4ZKB | Penthouse | 126,5 m² | vermietet |
| Haus 2 | ||||
| #1 | 3ZKB | Erdgeschoss | 93,3 m² | vermietet |
| #2 | 3ZKB | Erdgeschoss | 93,3 m² | vermietet |
| #3 | 3ZKB | Obergeschoss | 93,3 m² | vermietet |
| #4 | 3ZKB | Obergeschoss | 93,3 m² | vermietet |
| #5 | 4ZKB | Penthouse | 126,5 m² | vermietet |
| Haus 3 | ||||
| #1 | 3ZKB | Erdgeschoss | 93,3 m² | vermietet |
| #2 | 3ZKB | Erdgeschoss | 93,3 m² | vermietet |
| #3 | 3ZKB | Obergeschoss | 93,3 m² | vermietet |
| #4 | 3ZKB | Obergeschoss | 93,3 m² | vermietet |
| #5 | 4ZKB | Penthouse | 126,5 m² | vermietet |











